5 locali in vendita

Torino, Via Plava - Villaggio-Plava
€ 119.000
110 Mq 110 Mq
1 bagno 1 bagno

5 locali in vendita

Torino, Via Plava - Villaggio-Plava

Descrizione annuncio

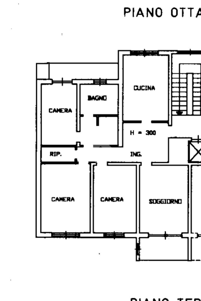
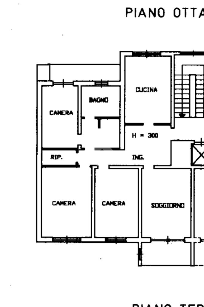
In Via Plava,115 in zona ricca di verde e comoda ai servizi, appartamento sito all’ottavo piano in stabile con ascensore.

Dalla porta blindata si accede al disimpegno che separa le camere.
La zona giorno è composta dalla cucina abitabile fornita di finestra e portafinestra che si affaccia sul primo balcone e dal soggiorno di generose dimensioni illuminato dalla portafinestra che accede al secondo balcone.
La zona notte si compone dalle tre camere da letto, due più ampie finestrate e la terza maggiormente sviluppata in lunghezza illuminata dalla portafinestra che si affaccia sul balcone comunicante con la cucina.
Conclude l'alloggio il bagno finestrato fornito di Box doccia.

Il Riscaldamentoè autonomo.
Grazie all’esposizione, l’alloggio risulta molto luminoso.
Completa l’abitazione la cantina al piano interrato e il box auto singolo.

Mostra tutto

Nelle vicinanze

Trasporto pubblico Trasporto pubblico
Settembrini C.19
Settembrini C.19
1,1 Km
Castello di Mirafiori
Castello di Mirafiori
1,1 Km
Negarville Est
Negarville Est
20 m
Quarello
Quarello
210 m
Ricariche auto elettriche Ricariche auto elettriche
Movi Mobility Village | EnelX
1,4 Km
I Viali Shopping Park Nichelino | EnelX
1,7 Km
Lidl Torino Traiano
2,8 Km
Scuole Scuole
Scuola Secondaria "Cristoforo Colombo"
60 m
CFP
290 m
Università di Torino - Incubatore d'impresa
320 m
Università di Torino - Scienze MFN e Farmacia
370 m
Scuola Primaria "Gaetano Salvemini"
530 m
Farmacia Farmacia
Farmacia Comunale
300 m
Farmacia Pramollo
710 m
San Domenico
1,1 Km
Ottone
1,3 Km
Farmacia
1,6 Km
Ospedali Ospedali
Presidio sanitario “Vittorio Valletta”
1,3 Km
Supermercati Supermercati
PrestoFresco
270 m
DPiù
330 m
EuroSpin
1,3 Km
In's
1,4 Km
Mercatò
1,4 Km
Negozi Negozi
Il Club delle Donne
350 m
Negozi
1,1 Km
Il Fornaio Pasticcere
1,3 Km
Panificio Naturale SAS
1,4 Km
Panetteria artigiana
1,7 Km
Bar Bar
Bar
540 m
Caffè Le Fornaci
1,7 Km
L'officina della pasta
1,7 Km
Coffee & More
1,7 Km
l'alveare bar città
1,9 Km
Ristoranti Ristoranti
Piada Cafè
820 m
Bar Self Service
820 m
Ristorante Bar Alcalyzè
880 m
Il ristoro del Drosso
890 m
Self service 612
980 m
Mostra tutto

Caratteristiche

Rif.:
61142146
Piano:
8 di 10 con ascensore (Piano alto)
Box:
1
Balconi:
2
Camere da letto:
3
Arredamento:
Assente
Mostra tutto
Prezzo Prezzo
€ 119.000
Rata mutuo Rata mutuo
€ 562 / mese
Spese annue Spese annue
€ 1.500
Proponi il tuo prezzoProponi il tuo prezzo

Classe Energetica

F
F
F
F
F
F
F
F
F
EP globale non rinnovabile:
236.23 kW h/m² anno
EP globale rinnovabile:
86.99 kW h/m² anno
EP invernale del fabbricato:
EP estiva del fabbricato:
Anno di costruzione:
1960
Riscaldamento:
Autonomo
Tipo impianto:
A radiatori
Tipo alimentazione:
Metano

Ti interessa visionare l'immobile?

Fissa un appuntamento  Fissa un appuntamento

Richiedi informazioni

Clicca su Leggi per aprire l'informativa
* Questi campi sono obbligatori

Calcola il tuo mutuo

Semplice e senza impegno
Anticipo

( % )
Mutuo

( % )

pochi semplici passi

inserisci i tuoi dati
Questionario completato
Grazie per aver richiesto un appuntamento senza impegno con un nostro Consulente del Credito e Assicurativo.

Hai inserito correttamente tutti i dati necessari e a breve riceverai una e-mail con un link da convalidare per inviare i tuoi dati.
Affiliato
Studio Beinasco Sas
Via Torino, 14 10092 Beinasco (TO)

Il nostro staff


  • Simone Giuseppe Garis
    Affiliato

  • Asya Baldacchino
    Collaboratrice

  • Andrea D'Amico
    Collaboratore

  • Alessia Di Vita
    Collaboratrice

  • Martina Guariglia
    Coordinatrice

  • Vincenzo Montanaro
    Collaboratore

  • Giorgia Marinelli
    Collaboratrice

  • Alice Testa
    Collaboratrice
Via Torino, 14 10092 Beinasco (TO)
Zona: Beinasco-Fraz. Fornaci-Borgaretto
Mostra su mappa
Orari: dal lunedì al venerdì: 09.00/12.30-15.00/19:30; sabato: 09.00/12.30-15.00/19.00
Affiliato
Studio Beinasco Sas
Via Torino, 14 10092 Beinasco (TO)

2025 Tecnocasa Franchising S.p.A. - P. IVA 08365160152 - Via Monte Bianco 60/A 20089 Rozzano (MI). Ogni agenzia ha un proprio titolare ed è autonoma. Privacy policy | Policy utilizzo | Cookie policy