Trilocale in vendita

Beinasco, Via N. Bixio - Borgaretto
€ 145.000
3 locali 3 locali
86 Mq 86 Mq
1 bagno 1 bagno

Trilocale in vendita

Beinasco, Via N. Bixio - Borgaretto

Descrizione annuncio

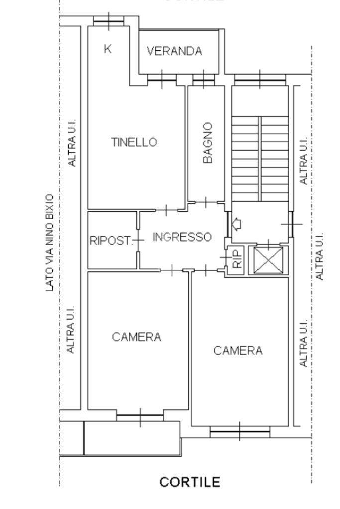
Nel centro di Borgaretto, in posizione strategica e comoda a tutti i principali servizi (negozi, scuole e mezzi pubblici), proponiamo in vendita un luminoso appartamento parzialmente ristrutturato nel 2021, situato al terzo piano di uno stabile ben tenuto, dotato di ascensore e giardino condominiale.

La soluzione, caratterizzata da doppia esposizione che assicura ambienti ariosi e ben illuminati durante tutto l’arco della giornata, si presenta con spazi ben distribuiti e facilmente personalizzabili. L’ingresso, ampio e accogliente, conduce alla zona giorno composta da tinello con cucinino a vista finestrato e accesso diretto al primo balcone verandato, ideale anche come pratica zona lavanderia esterna.

La zona notte offre due camere da letto di generosa metratura, entrambe facilmente arredabili: una con finestra e l’altra con portafinestra che conduce al secondo balcone con affaccio sul verde condominiale, perfetto per godere di tranquillità e privacy. Completano l’appartamento un comodo ripostiglio e bagno sviluppato sul lungo con box doccia e finestra.

Tutti gli infissi sono in pvc con doppi vetri.

A completare la proprietà troviamo una cantina al piano interrato e vi è anche la possibilità di poter acquistare a parte box auto singolo a 10000€.

Soluzione ideale per famiglie o per chi è alla ricerca di un’abitazione spaziosa, luminosa e in posizione centrale, pronta da vivere o da personalizzare secondo il proprio gusto.

Mostra tutto

Nelle vicinanze

Trasporto pubblico Trasporto pubblico
Castello di Mirafiori
Castello di Mirafiori
2,2 Km
Drosso Capolinea
Drosso Capolinea
2,2 Km
Fratelli Bandiera
Fratelli Bandiera
130 m
Galilei
Galilei
180 m
Ricariche auto elettriche Ricariche auto elettriche
Movi Mobility Village | EnelX
670 m
I Viali Shopping Park Nichelino | EnelX
1,9 Km
Scuole Scuole
Scuola Media Statale Antonio Vivaldi
430 m
Scuole
470 m
Scuola Dell'Infanzia Gatti
530 m
Scuola Primaria Dante Di Nanni
530 m
Scuola Primaria "Gaetano Salvemini"
1,7 Km
Farmacia Farmacia
Comunale
150 m
Farmacia
1,8 Km
Farmacia Comunale
1,9 Km
Équì
2,1 Km
Farmacia Accademia
2,4 Km
Supermercati Supermercati
DPiù
1,7 Km
PrestoFresco
1,8 Km
Carrefour
1,8 Km
docks
2,1 Km
Lidl
2,3 Km
Negozi Negozi
Mamma Morena
270 m
Il Fornetto
390 m
Carrefour Express
430 m
Conbipel
2,1 Km
Globo
2,1 Km
Bar Bar
Caffè Villa Reale
1,1 Km
Bar
1,8 Km
Caffè Le Fornaci
2,4 Km
Ristoranti Ristoranti
Ristoranti
190 m
Trattoria Alla Socio
250 m
La Nuova Casita
360 m
Cico
460 m
Osteria 111
520 m
Mostra tutto

Caratteristiche

Rif.:
61186959
Piano:
3 di 4 con ascensore (Piano alto)
Balconi:
2
Camere da letto:
2
Arredamento:
Assente
Condizionamento:
Assente
Mostra tutto
Prezzo Prezzo
€ 145.000
Rata mutuo Rata mutuo
€ 684 / mese
Spese annue Spese annue
€ 1.200
Proponi il tuo prezzoProponi il tuo prezzo

Classe Energetica

E
E
E
E
E
E
E
E
E
EP globale non rinnovabile:
134.00 kW h/m² anno
EP globale rinnovabile:
53.56 kW h/m² anno
EP invernale del fabbricato:
EP estiva del fabbricato:
Anno di costruzione:
1960
Riscaldamento:
Centralizzato
Tipo impianto:
A radiatori
Tipo alimentazione:
Metano

Ti interessa visionare l'immobile?

Fissa un appuntamento  Fissa un appuntamento

Richiedi informazioni

Clicca su Leggi per aprire l'informativa
* Questi campi sono obbligatori

Calcola il tuo mutuo

Semplice e senza impegno
Anticipo

( % )
Mutuo

( % )

pochi semplici passi

inserisci i tuoi dati
Questionario completato
Grazie per aver richiesto un appuntamento senza impegno con un nostro Consulente del Credito e Assicurativo.

Hai inserito correttamente tutti i dati necessari e a breve riceverai una e-mail con un link da convalidare per inviare i tuoi dati.
Affiliato
Studio Beinasco Srl
Via Torino, 14 10092 Beinasco (TO)

Il nostro staff


  • Simone Giuseppe Garis
    Affiliato

  • Asya Baldacchino
    Collaboratrice

  • Alessia Di Vita
    Collaboratrice

  • Martina Guariglia
    Coordinatrice

  • Vincenzo Montanaro
    Collaboratore

  • Giorgia Marinelli
    Collaboratrice

  • Alice Testa
    Collaboratrice
Via Torino, 14 10092 Beinasco (TO)
Zona: Beinasco-Fraz. Fornaci-Borgaretto
Mostra su mappa
Orari: dal lunedì al venerdì: 09.00/12.30-15.00/19:30; sabato: 09.00/12.30-15.00/19.00
Affiliato
Studio Beinasco Srl
Via Torino, 14 10092 Beinasco (TO)

2026 Tecnocasa Franchising S.p.A. - P. IVA 08365160152 - Via Monte Bianco 60/A 20089 Rozzano (MI). Ogni agenzia ha un proprio titolare ed è autonoma. Privacy policy | Policy utilizzo | Cookie policy