Multilocale in vendita

Beinasco, Via Schifani
€ 277.000
Prezzo aggiornato
5 locali 5 locali
140 Mq 140 Mq
2 bagni 2 bagni

Multilocale in vendita

Beinasco, Via Schifani

Descrizione annuncio

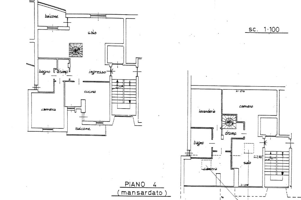
Nel centro di Beinasco, comodissimo a Ipercoop, scuole e a tutti i principali servizi, proponiamo in vendita un appartamento disposto su due livelli, situato al terzo piano con mansarda, all’interno di un curato condominio in paramano degli anni ’90, immerso nel giardino condominiale.

L’ingresso si apre su un ampio soggiorno doppio, luminoso e accogliente, uno spazio ideale per la vita quotidiana e per ricevere ospiti; grazie alla generosa metratura, offre anche la possibilità di ricavare una stanza aggiuntiva. Dal soggiorno si accede, tramite portafinestra, a un terrazzino vivibile, dotato di tenda estiva, perfetto per i momenti di relax all’aperto.
La cucina è abitabile, ben organizzata e servita da finestra e portafinestra che conducono a un secondo balcone, dove è installata la caldaia a semicondensazione sostituita nel 2020. Completano il piano una camera da letto con balcone alla francese e un bagno finestrato con vasca.

Attraverso una scala interna a giorno in legno massiccio si accede al piano superiore mansardato, dove troviamo due camere da letto, entrambe climatizzate, un secondo bagno finestrato con box doccia e una comoda stanza adibita a lavanderia, funzionale e ben sfruttabile.

L’appartamento è dotato di riscaldamento autonomo con termostati indipendenti su ciascun piano, infissi in legno con doppi vetri e impianto di antifurto volumetrico e perimetrale, garantendo comfort e sicurezza.

Completa la proprietà una cantina.
È inoltre possibile acquistare box auto singolo al prezzo di € 20.000.

Una soluzione ideale per chi cerca spazi ampi, comfort e una posizione centrale, senza rinunciare alla tranquillità.

Mostra tutto

Nelle vicinanze

Trasporto pubblico Trasporto pubblico
Settembrini Cap.
Settembrini Cap.
2,1 Km
Settembrini C.19
Settembrini C.19
2,2 Km
Mirafiori
Mirafiori
70 m
Risorgimento
Risorgimento
170 m
Ricariche auto elettriche Ricariche auto elettriche
Movi Mobility Village | EnelX
1,9 Km
Scuole Scuole
Scuole
140 m
Scuola Primaria "Aldo Mei"
930 m
Scuola Primaria "Gaetano Salvemini"
1,5 Km
Scuola Secondaria "Cristoforo Colombo"
1,9 Km
CFP
2,0 Km
Farmacia Farmacia
Ipercoop
220 m
Équì
240 m
Farmacia
680 m
Farmacia Accademia
760 m
Farmacia Comunale
1,6 Km
Ospedali Ospedali
Ospedale San Luigi - Emergency
2,6 Km
Ospedale San Luigi
2,7 Km
Centro Regionale Sclerosi Multipla - CRESM
2,8 Km
Supermercati Supermercati
Ipercoop
260 m
Lidl
300 m
Banco Fresco
310 m
DPiù
1,7 Km
PrestoFresco
1,7 Km
Negozi Negozi
Globo
180 m
Il Club delle Donne
1,7 Km
Carrefour Express
2,2 Km
Mamma Morena
2,2 Km
Il Fornetto
2,3 Km
Bar Bar
Caffè Le Fornaci
760 m
Bar
1,4 Km
Al Diciannove B
2,4 Km
L'officina della pasta
2,6 Km
Ristoranti Ristoranti
L'angolo partenopeo
700 m
La Terrazza di Tommasiello
700 m
Da Frasi
840 m
Villa Torre
2,0 Km
Lentini's
2,0 Km
Mostra tutto

Caratteristiche

Rif.:
61170330
Piano:
3 di 3 con ascensore (Piano su più livelli)
Box:
1
Balconi:
2
Terrazzi:
2
Camere da letto:
3
Mostra tutto
Prezzo Prezzo
€ 277.000
Prezzo box Prezzo box
€ 20.000
Rata mutuo Rata mutuo
€ 1.316 / mese
Spese annue Spese annue
€ 1.000
Proponi il tuo prezzoProponi il tuo prezzo

Classe Energetica

D
D
D
D
D
D
D
D
D
EP globale non rinnovabile:
89.51 kW h/m² anno
EP globale rinnovabile:
54.86 kW h/m² anno
EP invernale del fabbricato:
EP estiva del fabbricato:
Anno di costruzione:
1990
Riscaldamento:
Autonomo
Tipo impianto:
A radiatori
Tipo alimentazione:
Metano

Prezzo ridotto di €1 (3%%)

Ti interessa visionare l'immobile?

Fissa un appuntamento  Fissa un appuntamento

Richiedi informazioni

Clicca su Leggi per aprire l'informativa
* Questi campi sono obbligatori

Calcola il tuo mutuo

Semplice e senza impegno
Anticipo

( % )
Mutuo

( % )

pochi semplici passi

inserisci i tuoi dati
Questionario completato
Grazie per aver richiesto un appuntamento senza impegno con un nostro Consulente del Credito e Assicurativo.

Hai inserito correttamente tutti i dati necessari e a breve riceverai una e-mail con un link da convalidare per inviare i tuoi dati.
Affiliato
Studio Beinasco Srl
Via Torino, 14 10092 Beinasco (TO)

Il nostro staff


  • Simone Giuseppe Garis
    Affiliato

  • Asya Baldacchino
    Collaboratrice

  • Martina Guariglia
    Coordinatrice

  • Vincenzo Montanaro
    Collaboratore

  • Giorgia Marinelli
    Collaboratrice

  • Alice Testa
    Collaboratrice
Via Torino, 14 10092 Beinasco (TO)
Zona: Beinasco-Fraz. Fornaci-Borgaretto
Mostra su mappa
Orari: dal lunedì al venerdì: 09.00/12.30-15.00/19:30; sabato: 09.00/12.30-15.00/19.00
Affiliato
Studio Beinasco Srl
Via Torino, 14 10092 Beinasco (TO)

2026 Tecnocasa Franchising S.p.A. - P. IVA 08365160152 - Via Monte Bianco 60/A 20089 Rozzano (MI). Ogni agenzia ha un proprio titolare ed è autonoma. Privacy policy | Policy utilizzo | Cookie policy