Bilocale in vendita

Beinasco, Strada Borgaretto
€ 64.000
Prezzo aggiornato
2 locali 2 locali
62 Mq 62 Mq
1 bagno 1 bagno

Bilocale in vendita

Beinasco, Strada Borgaretto

Descrizione annuncio

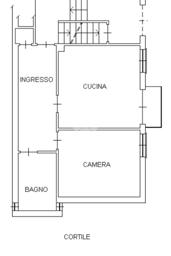
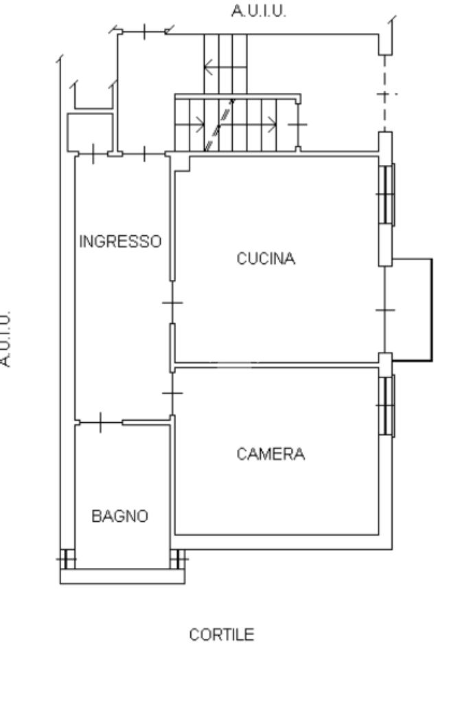
Strada Borgaretto, in zona tranquilla ma allo stesso tempo comoda ai principali servizi come le fermate dei pullman che portano a Beinasco e al San Luigi. In pochi metri inoltre si arriva sia al centro di Borgaretto che a Beinasco. In palazzina di quattro famiglie appartamenti al piano rialzato locato da inquilino con contratto registrato. Tramite porta c'è l'ingresso che dà accesso a tutte le stanze. La zona giorno è spaziosa ed è dotata di cucina lineare a vista. Nella zona giorno è presente la porta finestra con gli infissi in legno che affaccia sul balcone con vista sul cortile condominiale. La camera da letto è ben squadrata e facilmente arredabile ed è dotata di finestra. Il bagno è dotato di vasca e di finestra. Il riscaldamento è centralizzato. Completa la proprietà la cantina al piano interrato.

Mostra tutto

Nelle vicinanze

Trasporto pubblico Trasporto pubblico
Castello di Mirafiori
Castello di Mirafiori
2,5 Km
Drosso Capolinea
Drosso Capolinea
2,5 Km
Borgaretto N.27
Borgaretto N.27
180 m
Borgaretto N.13
Borgaretto N.13
220 m
Ricariche auto elettriche Ricariche auto elettriche
Movi Mobility Village | EnelX
990 m
I Viali Shopping Park Nichelino | EnelX
2,3 Km
Scuole Scuole
Scuole
900 m
Scuola Media Statale Antonio Vivaldi
1,0 Km
Scuola Primaria Dante Di Nanni
1,1 Km
Scuola Dell'Infanzia Gatti
1,1 Km
Scuola Primaria "Gaetano Salvemini"
1,6 Km
Farmacia Farmacia
Comunale
740 m
Facci Tosatti
920 m
Ipercoop
1,6 Km
Équì
1,6 Km
Farmacia
1,6 Km
Supermercati Supermercati
CRAI
660 m
Conad
730 m
Ipercoop
1,6 Km
DPiù
1,7 Km
Banco Fresco
1,8 Km
Negozi Negozi
Mamma Morena
870 m
Carrefour Express
980 m
Il Fornetto
1,0 Km
Il Maggiolino
1,0 Km
Globo
1,6 Km
Bar Bar
Al Diciannove B
1,0 Km
Caffè Villa Reale
1,7 Km
Bar
1,7 Km
Caffè Le Fornaci
2,0 Km
Ristoranti Ristoranti
Ristoranti
750 m
Trattoria Alla Socio
860 m
La Nuova Casita
970 m
Cico
1,1 Km
Osteria 111
1,1 Km
Mostra tutto

Caratteristiche

Rif.:
61152563
Piano:
Rialzato di 2
Totale piani:
2
Balconi:
1
Camere da letto:
1
Arredamento:
Assente
Mostra tutto
Prezzo Prezzo
€ 64.000
Rata mutuo Rata mutuo
€ 302 / mese
Spese annue Spese annue
€ 0
Proponi il tuo prezzoProponi il tuo prezzo

Classe Energetica

E
E
E
E
E
E
E
E
E
EP globale non rinnovabile:
211.05 kW h/m² anno
EP globale rinnovabile:
90.29 kW h/m² anno
EP invernale del fabbricato:
EP estiva del fabbricato:
Anno di costruzione:
1970
Riscaldamento:
Centralizzato
Tipo impianto:
A radiatori
Tipo alimentazione:
Metano

Prezzo ridotto di €1 (8%%)

Ti interessa visionare l'immobile?

Fissa un appuntamento  Fissa un appuntamento

Richiedi informazioni

Clicca su Leggi per aprire l'informativa
* Questi campi sono obbligatori

Calcola il tuo mutuo

Semplice e senza impegno
Anticipo

( % )
Mutuo

( % )

pochi semplici passi

inserisci i tuoi dati
Questionario completato
Grazie per aver richiesto un appuntamento senza impegno con un nostro Consulente del Credito e Assicurativo.

Hai inserito correttamente tutti i dati necessari e a breve riceverai una e-mail con un link da convalidare per inviare i tuoi dati.
Affiliato
Studio Beinasco Srl
Via Torino, 14 10092 Beinasco (TO)

Il nostro staff


  • Simone Giuseppe Garis
    Affiliato

  • Asya Baldacchino
    Collaboratrice

  • Alessia Di Vita
    Collaboratrice

  • Martina Guariglia
    Coordinatrice

  • Vincenzo Montanaro
    Collaboratore

  • Giorgia Marinelli
    Collaboratrice

  • Alice Testa
    Collaboratrice
Via Torino, 14 10092 Beinasco (TO)
Zona: Beinasco-Fraz. Fornaci-Borgaretto
Mostra su mappa
Orari: dal lunedì al venerdì: 09.00/12.30-15.00/19:30; sabato: 09.00/12.30-15.00/19.00
Affiliato
Studio Beinasco Srl
Via Torino, 14 10092 Beinasco (TO)

2026 Tecnocasa Franchising S.p.A. - P. IVA 08365160152 - Via Monte Bianco 60/A 20089 Rozzano (MI). Ogni agenzia ha un proprio titolare ed è autonoma. Privacy policy | Policy utilizzo | Cookie policy