 
			 
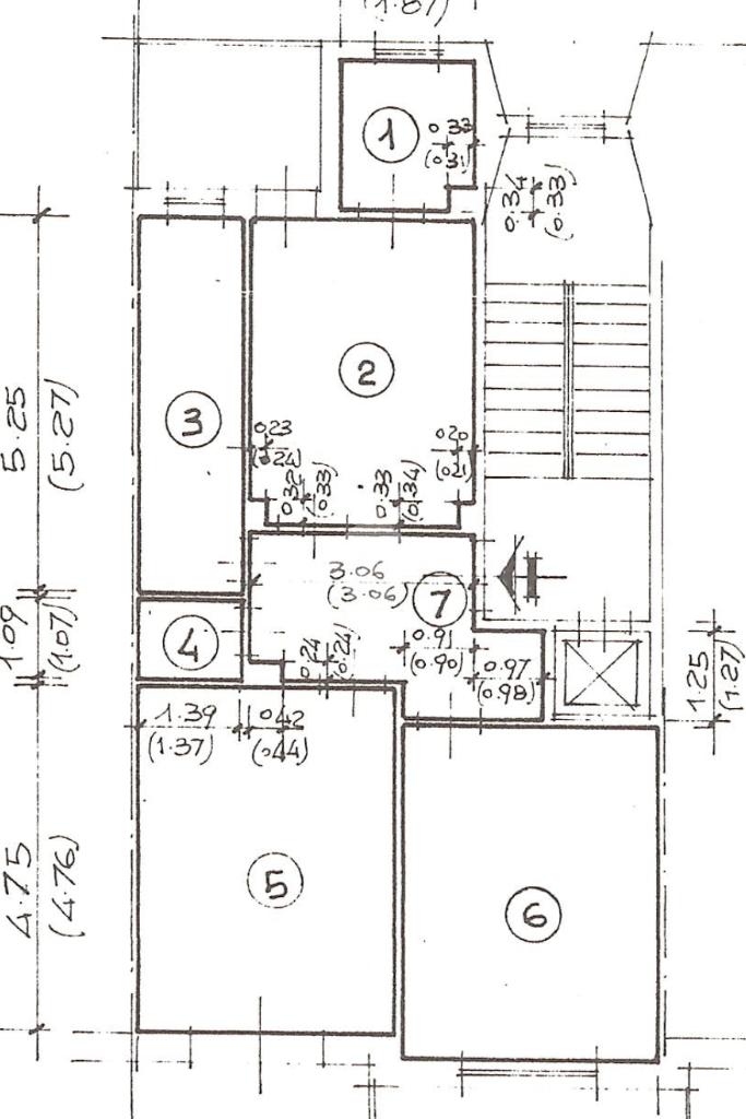
				Borgo Melano, principalmente in Via Manzoni, via tranquilla ma a pochi passi dai principali servizi quali EuroSpin, il centro di Beinasco e il centro commerciale Le Fornaci. Facendo pochi passi si arriva su Strada Orbassano dove troviamo le fermate dei pullman che portano a Torino e ad Orbassano. In stabile in paramano con ascensore e videocitofono appartamento al secondo piano. Tramite portoncino blindato si ha l'accesso alla zona giorno living dotato di cucinino attrezzato su entrambe le pareti dotato di finestra e porta finestra con gli infissi in pvc con il doppio vetro con affaccio sul primo balcone verandato con caldaia esterna e presa elettrica. Nella zona giorno è presente il condizionatore. Le camere da letto sono empie e ben squadrate ed una è dotata di porta finestra con affaccio sul secondo balcone e l'altra è dotata di finestra. Il bagno è dotato di doccia e di vasca ed è presente la finestra. L'appartamento è stato completamente ristrutturato circa nel 2009 e la ristrutturazione comprende la pavimentazione, gli impianti sia idraulici che elettrici e gli infissi in pvc con il doppio vetro e e porte interne. Il riscaldamento è centralizzato con le termovalvole e completa la proprietà la cantina al piano interrato e un box auto singolo di ampia metratura.
Ti interessa visionare l'immobile?