 
			 
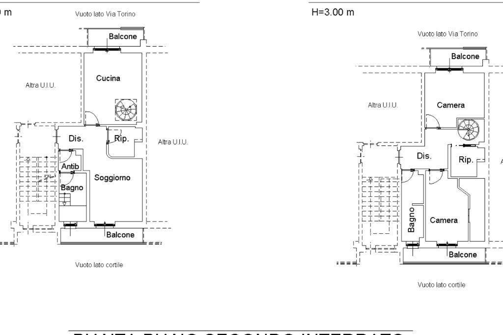
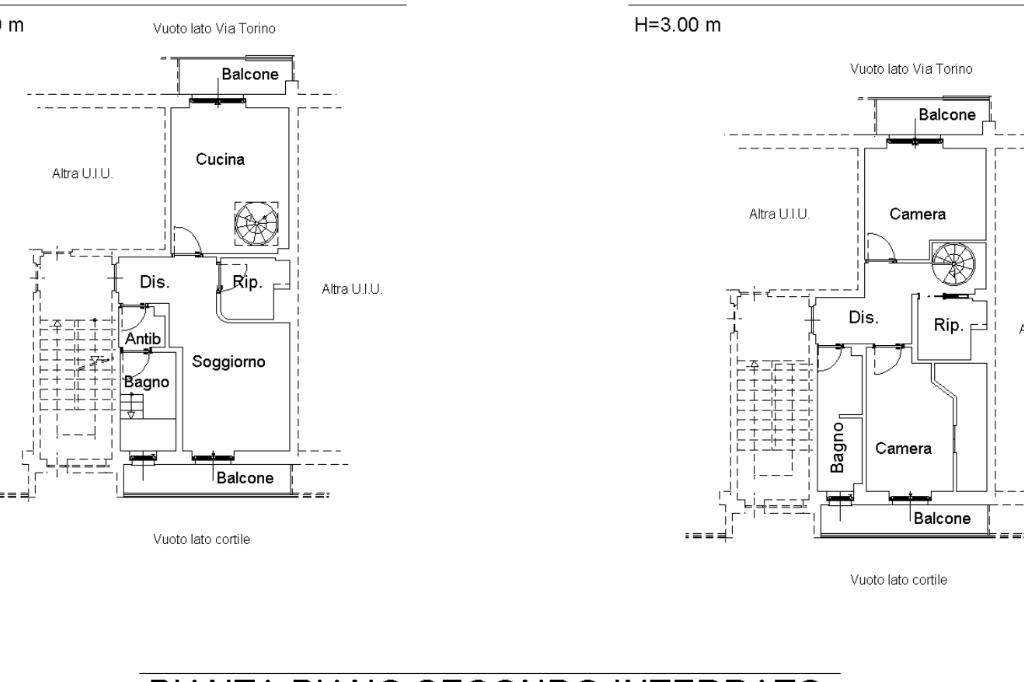
				In centro a Beinasco, precisamente in Via Torino. Stabile di poche famiglie dove è stato rifatto il tetto e la facciata nel 2020 e dove verrà ridato il colore alla scala interna e sostituite le buche delle lettere. Inoltre, nel 2025 sono stati sostituiti a nuovo i citofoni con videocitofono. Dalla fusione di due appartamenti, piano secondo e piano terzo, è stato creato un appartamento di circa 113mq dove sotto abbiamo la zona giorno e sopra la zona notte. Il secondo piano è stato completamente ristrutturato nel 2020 e tramite porta blindata c'è l'accesso diretto al soggiorno con porta finestra con infissi in pvc con il triplo vetro con affaccio sul primo balcone con vista sul cortile interno. La cucina è abitabile è c'è la possibilità di posizionare una cucina lineare. Anche in cucina c'è la porta finestra con affaccio sul secondo balcone con vista su Via Torino. Il bagno è dotato di vasca e di finestra. Completa il ripostiglio. Tramite scala interna a chiocciola si arriva al terzo piano ristrutturato totalmente nel 2015 dove ci sono due ampie camere da letto entrambe dotate di porta finestra con affaccio su due balconi differenti. Entrambe le pareti delle due camere sono con doppio isolamento. Il bagno è dotato di doccia e di finestra ed anche al terzo piano è presente uno studio. Al terzo piano si può accedere anche tramite vano scala tramite porta blindata.
La ristrutturazione comprende tutto, la pavimentazione in tutta la casa compresi i balconi lato strada che sono piastrellati, gli infissi in pvc con triplo vetro con tapparelle elettriche gestibili tramite telefono dotate di zanzariere modello 'carroarmato' su tutte le finestre. Gli impianti sia idraulici che elettrici sono stati rifatti. Inoltre, l'impianto elettrico è suddiviso per piano e sono presenti due quadri elettrici per suddividere le zone. E'presente il condizionatore nella zona giorno e nella zona notte e c'è la predisposizione in cucina e tramite smartphone c'è comunicazione tra i due appartamenti. L'illuminazione è a led in cartongesso con giochi di colore. Completa la proprietà due cantine al piano interrato attualmente unite e un box auto 6x4 con luce ed acqua coperto con ulteriore spazio sottoscala. Possibilità di separare i due alloggi.
Ti interessa visionare l'immobile?